Skip to content
45 Fremont
  • Home
  • Building
  • Location
  • Contact
  • Tenant Resources
  • Brochure

More than convenience, find inspiration inside.

1978

Year Constructed

34

Stories

~19,000

SF Floor Plates

621,602

Total SF

Availability

Interact with the links below to see current availabilities 
as well as more specific details related to each floor or suite.

Floor Suite Square Feet

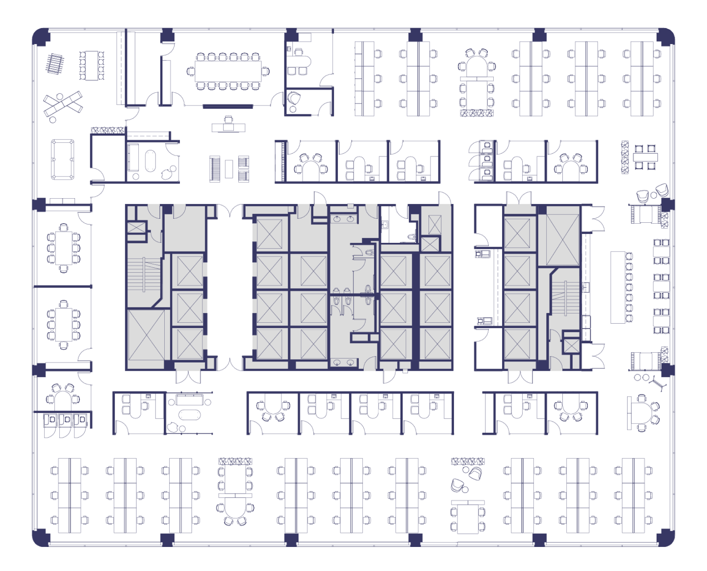
Floor 34


Suite 3400

Floor 34

Suite 3400


  • ~20,095 SQFT
  • High-Rise — Base Plan
44 Private Offices
1 Large Conference Room
4 Medium Conference Rooms
6 Small Meeting Rooms
14 Workstations
1 Break Room
1 Reception Area
1 Server Room
1 Wellness Room
2 Copy / Supply Rooms
1 Interview Room
3 Phone Rooms
2 Printer Stations
14 Workstations
1 Break Room
1 Reception Area
1 Server Room
1 Wellness Room
2 Copy / Supply Rooms
1 Interview Room
3 Phone Rooms
2 Printer Stations
10 Private Offices
1 Large Conference Room
5 Medium Conference Rooms
5 Small Meeting Rooms
66 Workstations
1 Break Room
1 Reception Area
1 Lounge
1 Server Room
1 Wellness Room
2 Copy / Supply Rooms
2 Interview Rooms
3 Phone Rooms
2 Printer Stations
66 Workstations
1 Break Room
1 Reception Area
1 Lounge
1 Server Room
1 Wellness Room
2 Copy / Supply Rooms
2 Interview Rooms
3 Phone Rooms
2 Printer Stations
Virtual Tour View Tourbook Download Floor Plans
Floor 34 - Base Plan Floor 34 - As Built Floor 34 - Private Office Floor 34 - Open Office

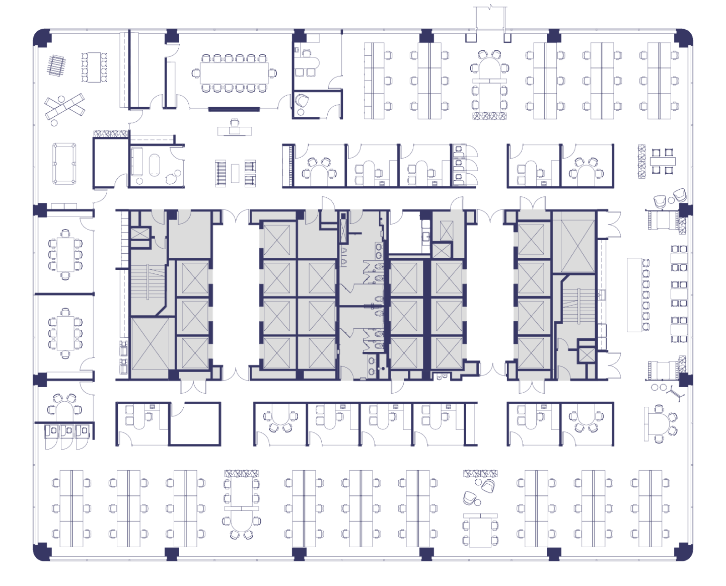
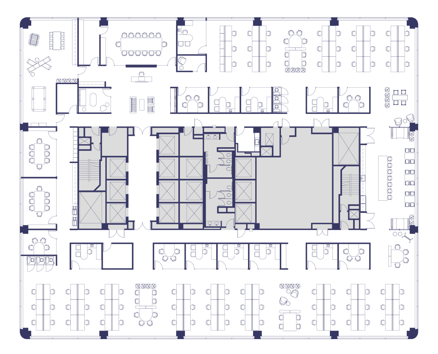
Floor 18


Suite 1800

Floor 18

Suite 1800


  • ~19,284 SQFT
  • Mid-Rise — Base Plan
45 Private Offices
1 Large Conference Room
3 Medium Conference Rooms
4 Small Conference Rooms
10 Workstations 8x8
1 Coffee Station
1 Break Room
1 Reception Area
2 Printer / Copy / Fax Areas
1 Server / Storage Room
1 Wellness Room
10 Workstations 8x8
1 Coffee Station
1 Break Room
1 Reception Area
2 Printer / Copy / Fax Areas
1 Server / Storage Room
1 Wellness Room
9 Private Offices
1 Large Conference Room
3 Medium Conference Rooms
3 Small Meeting Rooms
5 Open Collaboration Rooms
80 Workstations
1 Break Room
1 Reception Area
1 Server / Storage Room
1 Wellness Room
1 Copy / Supply Room
1 Interview Room
4 Phone Rooms
5 Open Collaboration Rooms
80 Workstations
1 Break Room
1 Reception Area
1 Server / Storage Room
1 Wellness Room
1 Copy / Supply Room
1 Interview Room
4 Phone Rooms
View Tourbook Download Floor Plans
Floor 18 - Base Plan Floor 18 Suite 1800 As Built Floor Plan Floor 18 - Private Office Floor 18 - Open Office

Floor 16


Suite 1600

Floor 16

Suite 1600


  • ~18,364 SQFT
  • Mid-Rise — Base Plan
37 Private Offices
1 Large Conference Room
2 Medium Conference Rooms
3 Small Conference Rooms
12 Workstations
2 Phone Rooms
1 Reception Area
1 Break Room
1 Lounge
1 Coffee Station
1 Copy / Supply Station
1 Server Room
1 Storage Room
1 Mother’s Room
12 Workstations
2 Phone Rooms
1 Reception Area
1 Break Room
1 Lounge
1 Coffee Station
1 Copy / Supply Station
1 Server Room
1 Storage Room
1 Mother’s Room
9 Private Offices
1 Large Conference Room
2 Medium Conference Rooms
5 Small Conference Rooms
1 Interview Room
81 Workstations
1 Open Collaboration Area
1 Reception Area
1 Phone Room + 6 Phone Booths
1 Break Room
1 Lounge
1 Coffee Station
1 Copy / Supply Station
1 Server Room
1 Storage Room
1 Mother’s Room
1 Interview Room
81 Workstations
1 Open Collaboration Area
1 Reception Area
1 Phone Room + 6 Phone Booths
1 Break Room
1 Lounge
1 Coffee Station
1 Copy / Supply Station
1 Server Room
1 Storage Room
1 Mother’s Room
Virtual Tour View Tourbook Download Floor Plans
Floor 16 Suite 1600 Base Plan Floor 16 Suite 1600 As-Built Plan Floor 16 Suite 1600 Hypothetical Private Office Plan Floor 16 Suite 1600 Hypothetical Open Office Plan

Floor 15


Suite 1500

Floor 15

Suite 1500


  • ~18,925 SQFT
  • Mid-Rise — Base Plan
37 Private Offices
1 Large Conference Room
2 Medium Conference Rooms
3 Small Conference Rooms
12 Workstations
2 Phone Rooms
1 Reception Area
1 All Gender Restroom
1 Break Room
1 Lounge
1 Coffee Station
1 Copy / Supply Station
1 Mail Room
1 Server Room
3 Storage Rooms
12 Workstations
2 Phone Rooms
1 Reception Area
1 All Gender Restroom
1 Break Room
1 Lounge
1 Coffee Station
1 Copy / Supply Station
1 Mail Room
1 Server Room
3 Storage Rooms
9 Private Offices
1 Large Conference Room
2 Medium Conference Rooms
5 Small Conference Rooms
81 Workstations
6 Open Collaboration Areas
1 Interview Room
1 Reception Area
1 Phone Room + 6 Phone Booths
1 Break Room
1 Lounge
1 Coffee Station
1 Copy / Supply Station
1 Server Room
1 Storage Room
1 All Gender Restroom
81 Workstations
6 Open Collaboration Areas
1 Interview Room
1 Reception Area
1 Phone Room + 6 Phone Booths
1 Break Room
1 Lounge
1 Coffee Station
1 Copy / Supply Station
1 Server Room
1 Storage Room
1 All Gender Restroom
Virtual Tour View Tourbook Download Floor Plans
Floor 15 Suite 1500 Base Plan Floor 15 Suite 1500 As-Built Plan Floor 15 Suite 1500 Hypothetical Private Office Plan Floor 15 Suite 1500 Hypothetical Open Office Plan

Floor 14


Suite 1400

Floor 14

Suite 1400


  • ~18,964 SQFT
  • Mid-Rise — Base Plan
37 Private Offices
1 Large Conference Room
2 Medium Conference Rooms
3 Small Meeting Rooms
12 Workstations
1 Break Room
1 Reception Area
1 Server Room
1 Mother’s Room
1 Copy / Supply Station
1 Lounge
1 Coffee Station
1 Storage Room
2 Phone Rooms
12 Workstations
1 Break Room
1 Reception Area
1 Server Room
1 Mother’s Room
1 Copy / Supply Station
1 Lounge
1 Coffee Station
1 Storage Room
2 Phone Rooms
9 Private Offices
1 Large Conference Room
2 Medium Conference Room
5 Small Conference Rooms
5 Open Collaboration Areas
1 Interview Room
1 Reception Area
1 Phone Room + 6 Phone Booths
1 Break Room
1 Lounge
1 Coffee Station
1 Copy / Supply Station
1 Locker Area
1 Server Room
1 Storage Room
1 Mother’s Room
5 Open Collaboration Areas
1 Interview Room
1 Reception Area
1 Phone Room + 6 Phone Booths
1 Break Room
1 Lounge
1 Coffee Station
1 Copy / Supply Station
1 Locker Area
1 Server Room
1 Storage Room
1 Mother’s Room
Virtual Tour View Tourbook Download Floor Plans
Floor 14 Suite 1400 Base Plan Floor 14 Suite 1400 As-Built Floor Plan Floor 14 Suite 1400 Hypothetical Private Office Floor Plan Floor 14 Suite 1400 Hypothetical Open Office Floor Plan

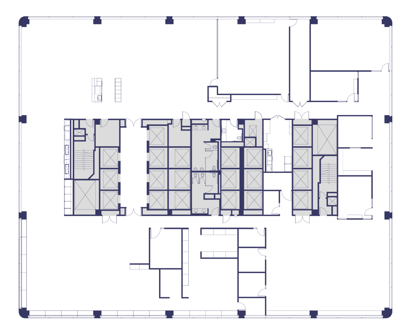
Floor 13


Suite 1300

Floor 13

Suite 1300


  • ~7,640 SQFT
  • Low-Rise — As Built
5 Private Offices
1 Large Conference Room
2 Medium Conference Rooms
1 Small Meeting Room
24 Workstations
1 Break Room
1 Reception Area
1 Printer / Copy / Mail Area
1 Server Room
1 Storage Room
1 Wellness Room
24 Workstations
1 Break Room
1 Reception Area
1 Printer / Copy / Mail Area
1 Server Room
1 Storage Room
1 Wellness Room
Virtual Tour View Tourbook Download Floor Plans
Floor 13 Suite 1300 As-built Floor Plan

Floor 13


Suite 1320

Floor 13

Suite 1320


  • ~3,866 SQFT
  • Low-Rise — As Built
3 Private Offices
1 Medium Conference Room
22 Workstations
1 Break Room
1 Reception Area
1 Printer / Copy Station
1 Server / Storage Room
1 Reception Area
1 Printer / Copy Station
1 Server / Storage Room
Virtual Tour View Tourbook Download Floor Plans
Floor 13 Suite 1320 As Built Floor Plan

Floor 13


Suite 1350

Floor 13

Suite 1350


  • ~7,347 SQFT
  • Low-Rise — As Built
13 Private Offices
1 Large Conference Room
2 Medium Conference Rooms
2 Small Meeting Rooms
2 Workstations 8x8
1 Coffee Station
1 Reception Area
1 Printer / Copy / Mail Room
1 Server Room
1 Storage Room
2 Workstations 8x8
1 Coffee Station
1 Reception Area
1 Printer / Copy / Mail Room
1 Server Room
1 Storage Room
Virtual Tour View Tourbook Download Floor Plans
Floor 13 Suite 1350 As Built Floor Plan

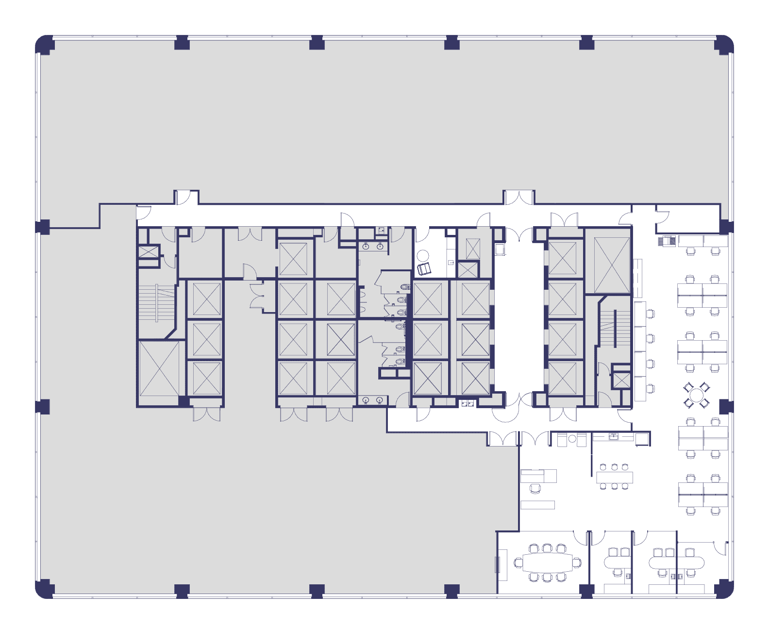
Floor 6


Suite 600

Floor 6

Suite 600


  • ~18,987 SQFT
  • Low-Rise — Base Plan
45 Private Offices
1 Large Conference Room
3 Medium Conference Rooms
4 Small Meeting Rooms
10 Workstations 8x8
1 Coffee Station
1 Break Room
1 Reception Area
2 Printer / Copy / Fax Areas
1 Server / Storage Room
1 Wellness Room
10 Workstations 8x8
1 Coffee Station
1 Break Room
1 Reception Area
2 Printer / Copy / Fax Areas
1 Server / Storage Room
1 Wellness Room
9 Private Offices
1 Large Conference Room
3 Medium Conference Rooms
3 Small Meeting Rooms
5 Open Collaboration Areas
80 Workstations
1 Break Room
1 Reception Area
1 Server / Storage Room
1 Wellness Room
1 Copy / Supply Room
1 Interview Room
4 Phone Rooms
5 Open Collaboration Areas
80 Workstations
1 Break Room
1 Reception Area
1 Server / Storage Room
1 Wellness Room
1 Copy / Supply Room
1 Interview Room
4 Phone Rooms
Virtual Tour View Tourbook Download Floor Plans
Floor 6 - Base Plan Floor 6 - As Built Floor 2,4,5,6 - Private Office Floor 2,4,5,6 - Open Office

Floor 5


Suite 500

Floor 5

Suite 500


  • ~18,987 SQFT
  • Low-Rise — Base Plan
45 Private Offices
1 Large Conference Room
3 Medium Conference Rooms
4 Small Meeting Rooms
10 Workstations 8x8
1 Coffee Station
1 Break Room
1 Reception Area
2 Printer / Copy / Fax Areas
1 Server / Storage Room
1 Wellness Room
10 Workstations 8x8
1 Coffee Station
1 Break Room
1 Reception Area
2 Printer / Copy / Fax Areas
1 Server / Storage Room
1 Wellness Room
9 Private Offices
1 Large Conference Room
3 Medium Conference Rooms
3 Small Meeting Rooms
5 Open Collaboration Areas
80 Workstations
1 Break Room
1 Reception Area
1 Server / Storage Room
1 Wellness Room
1 Copy / Supply Room
1 Interview Room
4 Phone Rooms
5 Open Collaboration Areas
80 Workstations
1 Break Room
1 Reception Area
1 Server / Storage Room
1 Wellness Room
1 Copy / Supply Room
1 Interview Room
4 Phone Rooms
Virtual Tour View Tourbook Download Floor Plans
Floor 5 - Base Plan Floor 5 - As Built Floor 2,4,5,6 - Private Office Floor 2,4,5,6 - Open Office

Floor 4


Suite 400

Floor 4

Suite 400


  • ~19,007 SQFT
  • Low-Rise — Base Plan
45 Private Offices
1 Large Conference Room
3 Medium Conference Rooms
4 Small Meeting Rooms
10 Workstations 8x8
1 Coffee Station
1 Break Room
1 Reception Area
2 Printer / Copy / Fax Areas
1 Server / Storage Room
1 Wellness Room
10 Workstations 8x8
1 Coffee Station
1 Break Room
1 Reception Area
2 Printer / Copy / Fax Areas
1 Server / Storage Room
1 Wellness Room
9 Private Offices
1 Large Conference Room
3 Medium Conference Rooms
3 Small Meeting Rooms
5 Open Collaboration Areas
80 Workstations
1 Break Room
1 Reception Area
1 Server / Storage Room
1 Wellness Room
1 Copy / Supply Room
1 Interview Room
4 Phone Rooms
5 Open Collaboration Areas
80 Workstations
1 Break Room
1 Reception Area
1 Server / Storage Room
1 Wellness Room
1 Copy / Supply Room
1 Interview Room
4 Phone Rooms
Virtual Tour View Tourbook Download Floor Plans
Floor 4 - Base Plan Floor 4 - As Built Floor 2,4,5,6 - Private Office Floor 2,4,5,6 - Open Office

Floor 2


Suite 200

Floor 2

Suite 200


  • ~19,028 SQFT
  • Low-Rise — Base Plan
9 Private Offices
1 Large Conference Room
3 Medium Conference Rooms
3 Small Meeting Rooms
5 Open Collaboration Areas
80 Workstations
1 Break Room
1 Reception Area
1 Server / Storage Room
1 Wellness Room
1 Copy / Supply Room
1 Interview Room
4 Phone Rooms
5 Open Collaboration Areas
80 Workstations
1 Break Room
1 Reception Area
1 Server / Storage Room
1 Wellness Room
1 Copy / Supply Room
1 Interview Room
4 Phone Rooms
45 Private Offices
1 Large Conference Room
3 Medium Conference Rooms
4 Small Meeting Rooms
10 Workstations 8x8
1 Coffee Station
1 Break Room
1 Reception Area
2 Printer / Copy / Fax Areas
1 Server / Storage Room
1 Wellness Room
10 Workstations 8x8
1 Coffee Station
1 Break Room
1 Reception Area
2 Printer / Copy / Fax Areas
1 Server / Storage Room
1 Wellness Room
Virtual Tour View Tourbook Download Floor Plans
Floor 2 - Base Plan Floor 2 - As Built Floor 2,4,5,6 - Open Office Floor 2,4,5,6 - Private Office

Leasing Contact

Mark Anderson

  • Vice Chairman
  • mark.anderson@cushwake.com
  • +1 (415) 713-1014
  • Lic. #01325399

Sam Wasserstein

  • Managing Director
  • sam.wasserstein@cushwake.com
  • +1 (415) 773-3528
  • Lic. #01798616

Brendon Kane

  • Managing Director
  • brendon.kane@cushwake.com
  • +1 (415) 677-0466
  • Lic. #01884552

Floor Plans

For more info on leasing at 45 Fremont and to see the full range of availabilities, please download the document below.

Download Floor Plans

Picture yourself here.

OUR BRAND NEW LOBBY

The wow-factor that welcomes you in.

Recently renovated, our two main lobbies set the tone for 45 Fremont. Our Beale lobby offers exclusive access for tenants and their guests, with comfortable furnishings, a cozy fireplace, and additional private meeting spaces for small groups. The stunning Fremont lobby features two retail spaces—one is currently occupied by Proper Food, a fantastic option for fresh, seasonal grab-n-go offerings, and the other is being considered for a more formal, sit-down leisurely dining experience.

View Virtual Tour
45 Fremont Lobby

45 Fremont Lobby

YOUR NEXT WORKSPACE

The ideal layout for big ideas.

With open floor plates boasting 360 degree outlooks of SF and no columns to break up those views, 45 Fremont offers a perfectly flexible workspace for whatever configuration you need. Be sure to check out the bay views on floor 17 and up!

Interior shot of 45 Fremont workspace

Interior shot of 45 Fremont workspace

People walking in a neighborhood park

A truly world-class neighborhood.

SF’s South Financial District is filled with the best of this city’s food, art, culture and parks. Get to know what makes our location stand out from the rest.

Learn More

BIKE TO WORK

The perfect way to commute.

We don’t just encourage bike commuting, we enable it with a safe and clean place to store your two-wheeled rides along with showers, lockers, and restrooms so you can get ready for the workday after your ride. The bike room is only accessible with a building key card and includes a DIY bike maintenance station. Clean towels are also provided for the showers free of charge.

Bike storage at 45 Fremont

Bike storage at 45 Fremont

MOTHER'S ROOM

A private space to take a break.

With a dedicated, private room located on the 13th floor, 45 Fremont’s mother’s room is a quiet, relaxing space for new parents to pump.

Looking into mother's room from outside Interior shot of mother's room

Commitment to Sustainability

We take our promise to the planet seriously. Every decision we make – from our green cleaning program to our LEED Certification and Energy Star score – upholds our commitment.

Green Scorecard

U.S. Green Building Council LEED Icon

Platinum

LEED CERTIFIED

Energy Star Icon

84

ENERGY STAR

WELL Building Institute Health-Safety Rated Icon

Well

HEALTH SAFETY

Walk Score Icon

100

WALK SCORE

Transit Score Icon

100

TRANSIT SCORE

Bike Score Icon

83

BIKE SCORE

A CONSIDERED COURTYARD

A place to relax. An open space to gather.

Our plaza was designed as a space to entertain that feels miles away from the urban hustle yet right in the center of it all. With mood-setting string lights, a stage for live performances, and a cozy fire pit, it invokes the feeling of a cozy sidewalk cafe. And with access to in-house cuisine and adult beverages, it’s the perfect place to linger any time of day.

A view of the 45 Fremont outdoor courtyard with fire pit and benches

A view of the 45 Fremont outdoor courtyard with fire pit and benches

TENANT-FRIENDLY RETAIL

Inspired dining on-site.

The ground floor of 45 Fremont currently hosts Proper Food, a tenant-friendly grab-n-go option offering a delicious menu of sandwiches, salads, soups, and Chef’s specials that evolve with the seasons. A second, more formal leisurely dining experience is presently being considered for the south side of the lobby.

Interior of Proper Food at 45 Fremont

Interior of Proper Food at 45 Fremont

Downloads

Brochures

  • 45 Fremont Brochure
  • retail OVERVIEW

Sustainability

  • GREEN SCORECARD
  • WELL HEALTH SAFETY

General

  • PARKING SURVEY
  • TECHNOLOGY SNAPSHOT

Floor Plans

  • AVAILABLE FLOOR PLANS
45 Fremont

Mark Anderson

  • Vice Chairman
  • mark.anderson@cushwake.com
  • +1 (415) 713-1014
  • Lic. #01325399

Sam Wasserstein

  • Managing Director
  • sam.wasserstein@cushwake.com
  • +1 (415) 773-3528
  • Lic. #01798616

Brendon Kane

  • Managing Director
  • brendon.kane@cushwake.com
  • +1 (415) 677-0466
  • Lic. #01884552

Join our Mailing List

Subscribe now and stay up to date on the latest availabilities at 45 Fremont and more!

Your subscription could not be saved. Please try again.
Your subscription has been successful.
  • © 2026
  • 45 Fremont LLC
  • Terms of Use
  • Privacy Policy